:
Property Image

Våkleivåsen 24

VISNING

5 250 000

PRISANTYDNING

BOLIGTYPE

Rekkehus

TOTALPRIS

5 536 031

BRA-i

127

BRA-e

6

Åpent areal

11

BRA

133

ANTALL ROM

5

Cecilie Korneliussen

+4797068922

ck@zmegleren.no

Nøkkelinformasjon

ADRESSE

Våkleivåsen 24

PRISANTYDNING

5 250 000

OMKOSTNINGER

19 706

BOLIGTYPE

Rekkehus

EIERFORM

Delt eierskap

FELLESUTGIFTER

6 590

AREAL (P-ROM / BRA / BTA)

– / 133 / KVM

TOMT

18152.6 KVM

OPPDRAGSNUMMER

2260010

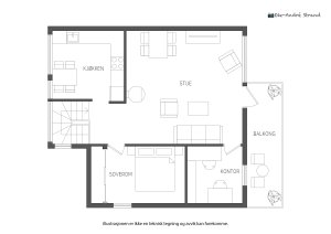
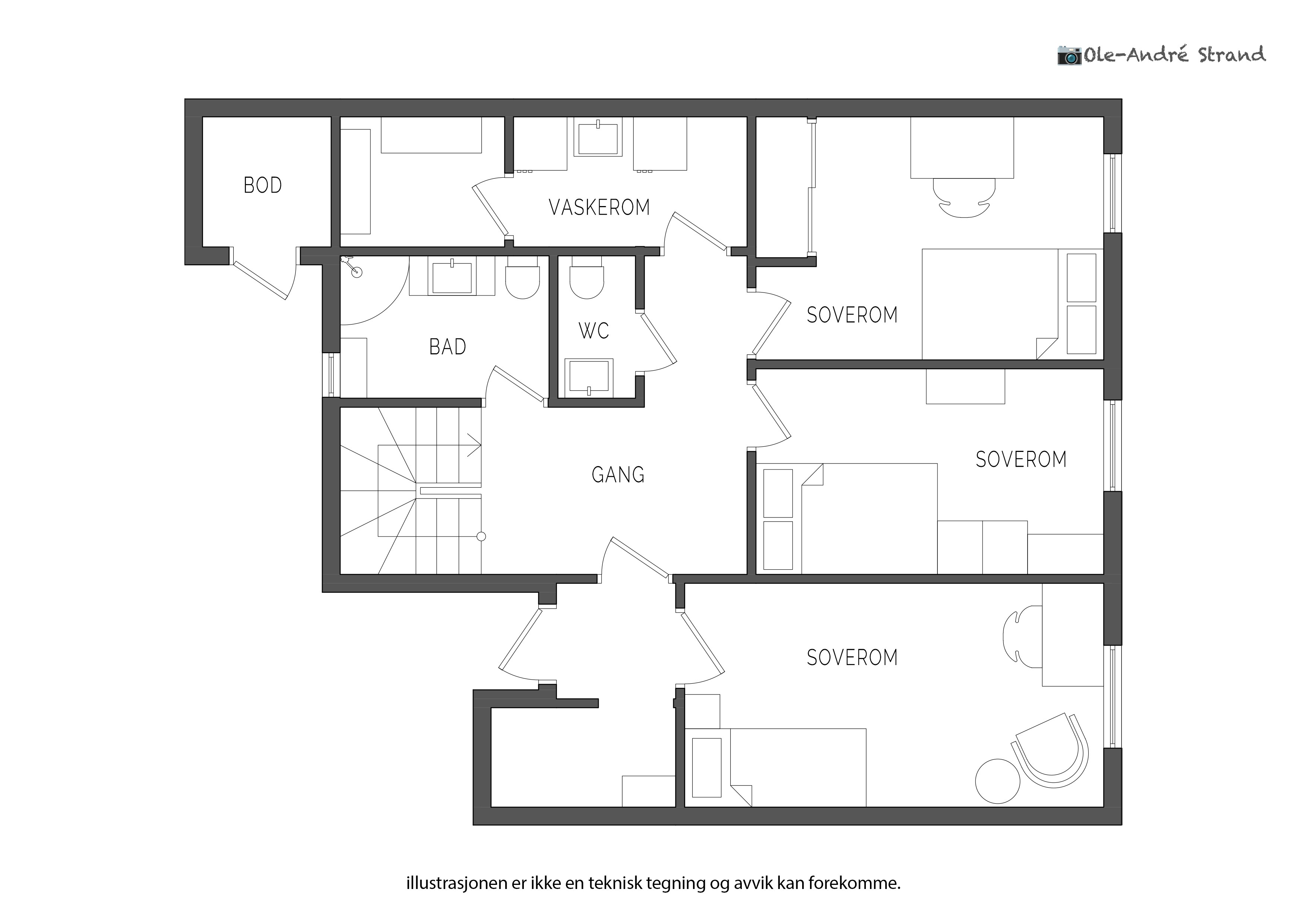
INNHOLD

Innhold | 1. etasje:

  • Entré (4,5 m²)
  • Gang/trapperom (10,9 m²)
  • Bad (4,4 m²)
  • Vaskerom (3,9 m²),
  • Toalettrom (1,4 m²)
  • Soverom (12,2 m²)
  • Soverom 2 (11,1 m²),
  • Soverom 3 (8,9 m²),
  • Innvendig bod (2,8 m²)

Vindu på det største soverommet i 1-etg tilfredsstiller ikke dagens forskrifter med hensyn til krav om dagslys. Dvs. at det er mindre enn 10 % lysinnslipp i forhold til gulvareal.


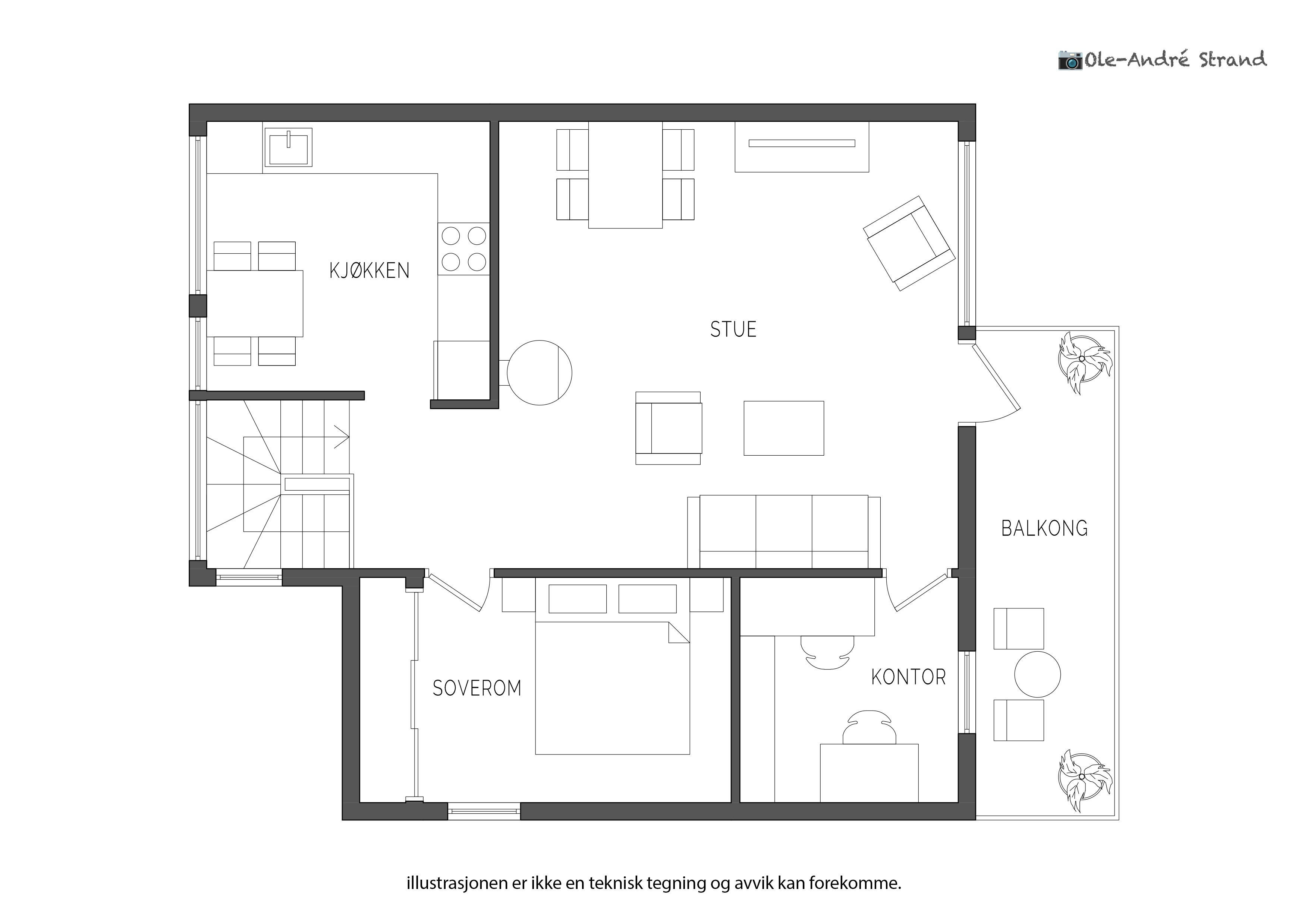
Innhold | 2. etasje:

  • Stue/kjøkken/trapperom (44,9 m²)
  • Soverom 4 (11,3 m²),
  • Kontor (6,6 m²)

Uteplass:
Med utgang fra stue er det adkomst til en altan. Fra inngangen har du tilgang til en pent opparbeidet hage med plen og prydbusker. Som ende-rekke har du ekstra god uteplass.


Boder:
En innvendig bod på 2,8 kvm og en uisolert ekstern bod på ca. 6,4 kvm med utvendig tilkomst.


Parkering:
En garasjeplass i felles garasjeanlegg med egen elbil ladestasjon. Type ladestasjon: Defa.


STANDARD

Enderekkehus over to plan. Bygget i 1982, tilbygd i 1987 og i 1992. Sørvestvendt altan på 10,7 m² med utgang fra stue. Tilgang til opparbeidet hage fra boligens inngangsparti. En garasjeplass i lukket garasjeanlegg med egen elbil ladestasjon. Nåværende eiere har hatt boligen siden 1983, og har jevnlig vedlikeholdt boligen gjennom eierperioden. Modernisering må for øvrig påregnes for å oppnå "dagens standard".


Innvendige overflater:

Gulv: Laminat, tre-stavs eikeparkett, vinylbelegg, teppe.

Vegger: Tapet, panel, malte gipsplater, tekstiltapet.

Himling: Takplater, malt panel, panel. Det er variabel alder/kvalitet på overflater.

Innvendig trapp: Furutrapp med åpne trinn.


Generelle oppgraderinger:

  • Nytt parkettgulv i stue i 2002.
  • Oppussing av gang/trapperom og to soverom i 1-etg i 2020.
  • Nytt laminatgulv på kjøkken i 2024.

Pipe og ildsted:

Rørpipe i stål. Ildsted i stue. Peisovn med glassfront. Produsent/type: Scan 51. Fra 2005. Montert av AS Varme. Peisovn er rentbrennende.


Toalettrom (areal: 1,4 m²):

Inneholder: Servant, speil og belysning, toalett. Laminat på gulv, malt platekledning på vegger/himling. Avtrekksventil i vegg. Toalettrom ble modernisert i 2020.


Bad (areal: 4,4 m²):

Inneholder: Servant med møblement/speil og belysning, toalett, buet dusjhjørne i glass, dusjgarnityr. Keramiske fliser på gulv/vegger, malt platekledning i himling. Avtrekksventil i vegg. Badet ble modernisert i 1997. Eksisterende varmekabler, sluk, vannrør og toalett fra byggeår ble ikke berørt under modernisering. Badet må anses å være utdatert.


Vaskerom (areal: 3,9 m²):

Inneholder: Utslagsvask, opplegg for vaskemaskin, varmtvannstank, tørkestativ. Våtromsbelegg på gulv, malt platekledning på vegger/himling. Avtrekksventil i himling. Vaskerom er fra byggeår og må anses å være utdatert.


Kjøkken:

Åpen stue/kjøkkenløsning. Areal til sammen: 44,9 m². Ny kjøkkeninnredning i 2006. Kjøkkenprodusent: Mørekjøkken.

Laminat på gulv, tapet på vegger, malt panel i himling. Kjøkkeninnredning med profilerte bjørke fronter. Takhøy innredning. Laminat benkeplate, underlimt stål vaskekum, ventilator, opplegg for oppvaskmaskin. Keramiske fliser over hoveddel av benkeplate.


Medfølgende hvitevarer:

  • Komfyr med induksjonstopp (Gorenje). Fra 2014.
  • Oppvaskmaskin (Beko). Fra 2023.
  • Kjøleskap/frys (Samsung). Fra 2022.

Teknisk tilstand på hvitevarer er ikke kontrollert.


Oppbevaring:

  • Hyller og klesoppheng i entre.
  • Skyvedørsgarderobe på hovedsoverom i 2-etg.
  • Skyvedørsgarderobe på ett soverom i 1-etg.
  • Garderobeskap på ett soverom i 1-etg.
  • En innvendig bod og en ekstern bod/ sportsbod.

Annet:

  • Fiber: Det er innlagt fiber i boligen. Leverandør: Bergen Fiber/Altibox. Norgespris:
  • Eier har bestilt Norgespris. Avtalen videreføres til ny eier. Binding gjelder ut 2026.

Ytterligere informasjon:

For ytterligere informasjon henvises til bildepresentasjon, tilstandsrapport og selgers egenerklæring.


Ansvarlig megler:

CecilieKorneliussen

ZMegleren AS

+47 97 06 89 22

ck@zmegleren.no


DIVERSE

Hvitevarer:
Selger opplyser at de tre hvitevarene på kjøkkenet medfølger. Hvitevarene er brukt (uten garanti) og overtas på denne bakgrunn. Ingen øvrige hvitevarer følger med.


Annet:
Det gjøres oppmerksom på at megler har ikke innhentet særskilte opplysninger om eventuelle pålegg om elektrisk anlegg eller brann/feievesen.


Gi bud

Her kan du gi bud. Klikk direkte på Gi bud under,eller klikk på ‘Les mer’ om du ønsker å lese mer om budgivingsprosessen.

Økonomi

Prisantydning

5 250 000

Omkostninger

19 706

Fellesgjeld

266 325

TOTALT

5 536 031

VÅRE EIENDOMSMEGLERE

Partner/Eiendomsmegler MNEF

Partner/Eiendomsmegler MNEF

Partner/Eiendomsmegler MNEF

Eiendomsmegler nybygg

Fagansvarlig/Eiendomsmegler MNEF

Partner/Administrasjonsleder

Eiendomsmegler MNEF

Eiendomsmegler/Partner/Boligfotograf

Saksbehandler

Footer